0049334122326
1
Anzahl der Objekte: 1 | 1
Obj.: 1 | 1

BEREITS NEU VERMIETET: 2-Zimmer-Wohnung mit Seeblick!

Blick in den Innenbereich Wohnung Strausberg
Blick in den Innenbereich
579,- €
 
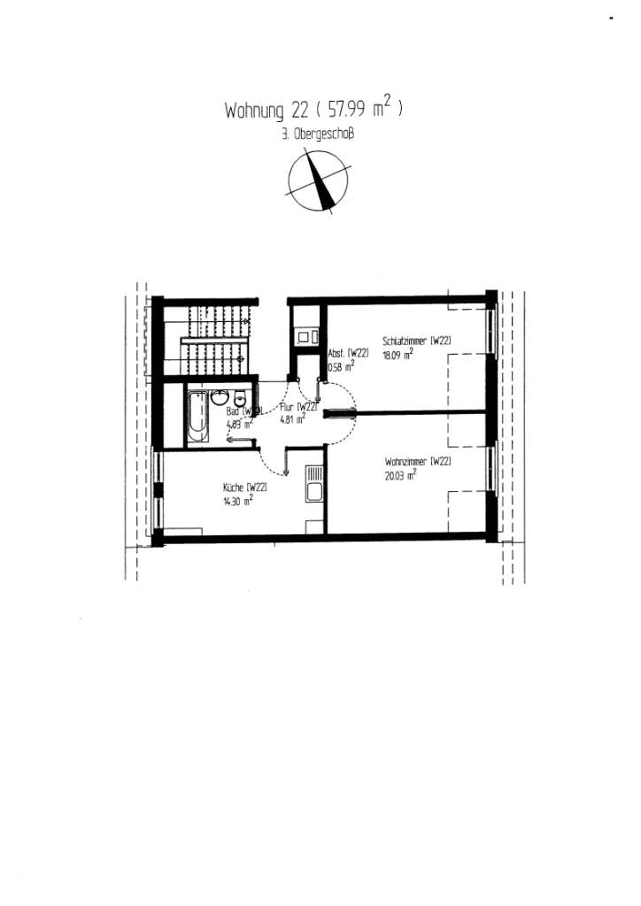
Grundriss Wohnung Strausberg
Grundriss
Flurbereich Wohnung Strausberg
Flurbereich
Küche Wohnung Strausberg
Küche
Bad mit Badewanne Wohnung Strausberg
Bad mit Badewanne
Wohnzimmer Wohnung Strausberg
Wohnzimmer
Schlafzimmer Wohnung Strausberg
Schlafzimmer
Tiefgarage Wohnung Strausberg
Tiefgarage
Straßenansicht Wohnung Strausberg
Straßenansicht

Objektart

Wohnung

Adresse

15344 Strausberg, August-Bebel-Straße 53

Objektdaten

Objekt-Nr. 2026AB22
Wohnfläche (ca.) 57,99 m²
Zimmer 2
Kaltmiete 579,- €
Informationen
Zustand
gepflegt
Ausstattung
Garage / Stellplatz
Gartennutzung
barrierefrei
Details
Heizkosten (ca.)
104,- €
Etage
3
Schlafzimmer
2

Diese 2-Zimmer-Wohnung befindet sich in einem 1999 erbauten Wohn- und Geschäftshaus mit Tiefgarage. Die sich zum See öffnende zugehörige Grünanlage mit Bänken und Privatspielplatz steht den Mietern zur Verfügung.

Küche mit Einbauküche, Bad mit Badewanne, Laminat- und Fliesenböden, kleine Abstellkammer, Kellerabstellraum, Trocken- und Fahrradkeller, Tiefgaragenstellplatz nach Verfügbarkeit (40 EUR/Monat).

Zentrale Stadtlage in unmittelbarer Nähe zum Straussee, alle Geschäfte des täglichen Bedarfs, Schulen und Kindergärten sowie Ärzte sind fußläufig in 3-5 Minuten zu erreichen.
Anschluss an öffentliche Verkehrsmittel: die Endhaltestelle "Lustgarten" der Straßenbahn befindet sich unmittelbar vor der Gesamtwohnanlage,die S-Bahn-Haltestelle "Strausberg-Stadt" ist zu Fuß in ca. 8-10 Minuten erreichbar. Die Wohnanlage besitzt an der Rückseite einen separaten Ausgang zum öffentlichen Spielplatz und zum Strausseeufer.

WICHTIG: es werden nur vollständige Angebotsanfragen einschließlich mitgeteilter Wohnanschrift und Rufnummer bearbeitet. Erforderliche Bonitätsnachweise: Schufa, Einkommensnachweise, Mietschuldenfreiheit. Es finden ausschließlich Einzelbesichtigungen statt. Weitere Angebote finden Sie unter: www.klaasimmobilien.de

Ansprechpartner

Herr Dipl.-Ing. Uwe Vogt
Telefon: 03341 / 22326
info@klaasimmobilien.de

Energieausweis (Verbrauchsausweis)

Energieausweis-Skala bis 790px
Energieausweis Positions Pfeil bis 790px 79 kWh / (m²*a) Energieverbrauchskennwert
Energieausweis-Skala bis 623px
Energieausweis Positions Pfeil bis 623px 79 kWh / (m²*a) Energieverbrauchskennwert
Energieausweis-Skala bis 768px
Energieausweis Positions Pfeil bis 768px 79 kWh / (m²*a) Energieverbrauchskennwert
Energieausweis-Skala bis 481px
Energieausweis Positions Pfeil bis 481px 79 kWh / (m²*a) Energieverbrauchskennwert
Energieausweis-Skala bis 320px
Energieausweis Positions Pfeil bis 320px 79 kWh / (m²*a) Energieverbrauchskennwert
Weitere Informationen
BefeuerungGas
Energieverbrauch für Warmwasserenthalten
Energieausweis Baujahr1999
HeizungZentralheizung

Ich bin damit einverstanden, dass mir Karten von Google angezeigt werden. Es gelten die Datenschutzbedingungen von Google (https://policies.google.com/privacy).

Ich bin einverstanden

Objektanfrage

Sie haben noch Fragen zu dem Angebot oder wollen einen Besichtigungstermin vereinbaren, dann füllen Sie einfach das untenstehende Formular vollständig aus und wir setzen uns schnellstmöglich mit Ihnen in Verbindung.
* Pflichtfelder

Exzellent

5,0

Basierend auf 6 Google-Bewertungen

Echtheit von Bewertungen
Um unsere Webseite für Sie optimal zu gestalten und fortlaufend verbessern zu können, verwenden wir Cookies. Durch die weitere Nutzung der Webseite stimmen Sie der Verwendung von Cookies zu. Weitere Informationen zu Cookies erhalten Sie in unserer Datenschutzerklärung.
OK